





















































New Penthouse In Jerusalem With Spectacular Jerusalem Views ( 360°)
4,860,000$
Location: Jerusalem
Property Type: Penthouse
Transaction Type: For Sale
Built area 200 m² | Terrace 20 m²
Bedrooms 5 | Bathrooms 3
Swimming pool 1
This is a brand penthouse is located close to the Knesset in the building received a standard ”green building” that cause the environment less harm.
A building was designed as a closed structure with 36 apartments in a modern design that combines classic elements.
On the north side of the project is a tall thirteen story building.
On the east side of the project is a row of six cottages.
On the south side of the project is a four story building.
Finally, on the western side of the project, a stone pergola covered with vines borders a well-kept beautiful garden, that gives the complex a feeling of space and privacy.
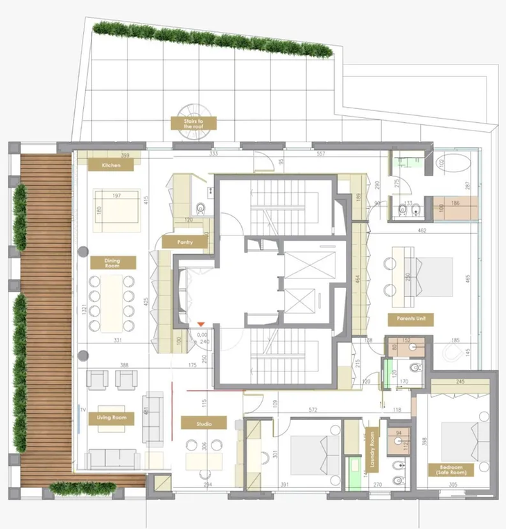
About the property
Penthouse is on the 13th floor + roof top terrace
6 rooms
3 bathrooms
Brand new, with spectacular 360 degrees views of Jerusalem.
200 sqm. built area is on one level
Two wide terraces– 41 sqm. facing Agnon st. (west) and 57sqm. facing north. Both good for a ”Sukka”.
51 sqm. Roof terrace with a 20 sqm. Swimming pool
2 parking places in the top parking floor
12 sqm. Storage room
Vitrea’s ”smart home” system
Underfloor water heating
A high-quality air condition system with units in every room
Well kept and maintained building
Beautiful garden in the compl
Have a question?
Contact us whenever you have any questions. We are always here for you!



